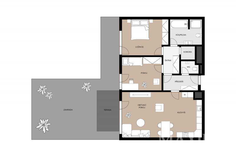
Nabízíme nezařízený byt 3+kk se zahrádkou, komorou a garážovým stáním, Praha 10, Vršovice.
Byt je v přízemí novostavby, má obytnou plochu cca 77 m2 + terasa cca 8 m2 + zahrádka cca 48 m2. K bytu patří jedno garážové stání, za poplatek 900,-Kč / měs lze pronajmout i druhé garážové stání. Velká komora hned vedle bytu. V kuchyňském koutě je linka, varná deska, vestavěná trouba, mikrovlnka, velká lednice, myčka. Dvě neprůchozí ložnice 14 a 12 m2, jedna s vestavěnou skříní. V koupelně vana i sprchový kout, toaleta, druhá toaleta samostatná. Topení dálkové ústřední. Předokenní rolety na el.pohon. Byt je k nastěhování ihned. Ukazatel energetické náročnosti: G* (PENB není k dispozici. Pokud bude dodán, bude údaj aktualizován).