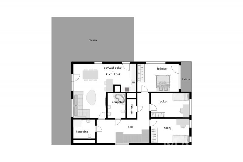
Exkluzivní nabídka jedinečné nemovitosti: pohledově chráněná rozlehlá terasa (62,5 m2) s otevřeným výhledem, garáž a další parkovací místo, ve spojení s dispozicí 4+kk/L se 2 koupelnami, komorou, halou s knihovnou a vstupní halou se šatnou, splňují nároky na komfortní bydlení v metropoli. Jednotka s celkovou plochou 179 m2: 113,3 m2 (vnitřní plocha bytu), 62,5 m2 (terasa), 2,8 m2 (lodžie), je situována ve 3. a 4. NP komorního bytového domu. Byt je uspořádán mezonetově tak, že vstupní podlaží reprezentuje pouze vstupní hala se šatnou, oddělená bezpečnostními dveřmi od společných prostor komorního bytového domu. V horním podlaží mezonetu se rozkládá v naprostém soukromí obytná zóna bytu s terasou a lodžií. Hala s knihovnou umožňuje vstup do společenské sekce, kterou tvoří obývací pokoj (30,8 m2) s jídelnou a kuchyní, provázaný francouzským oknem s terasou (62,4 m2) i vstup do privátní sekce, kterou tvoří pokoj (14 m2) s východně orientovanou lodžií (2,8 m2) a další 2 pokoje (10,9 m2 a 11,1 m2). Dispozici tohoto podlaží doplňují 2 koupelny, 2 WC a komora. Příslušenství jednotky tvoří sklep (3,7 m2) v 1.PP. Pohodlné parkování 2 aut garantuje garážové místo a venkovní parkovací místo. Bydlení s mimořádným soukromím v obytné čtvrti s parkovou úpravou, rychlou dostupností centra metropole, současně v sousedství přírody a dosahu vybavenosti.Nemovitost je nabízena výhradně naší kanceláří. Hypotéka lze, zařídíme nejoptimálnější profinancování.
PENB: G* (údaj není k dispozici, bude aktualizován)
Celý text
Zkrácený text