Exkluzivně nabízíme k prodeji dřevěné, roubené stavení, které bylo postaveno v roce 1790 a patří k nejstarším, takřka v původní podobě do současnosti zachovalým občanským stavením ve městě Lázně Bělohrad, v okrese Jičín. Lázeňské město leží v podhůří Krkonoš v nádherné, ekologicky čisté kotlině s krásnou přírodou v okolí.
Dům se nachází na Raisově náměstí v centru města. Zastavěná plocha domu je 150 m2, zahrada 207 m2. K domu náleží i 1/2 podíl (38,5 m2) na sousedním pozemku.
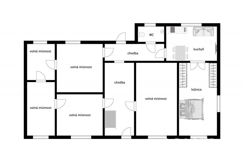
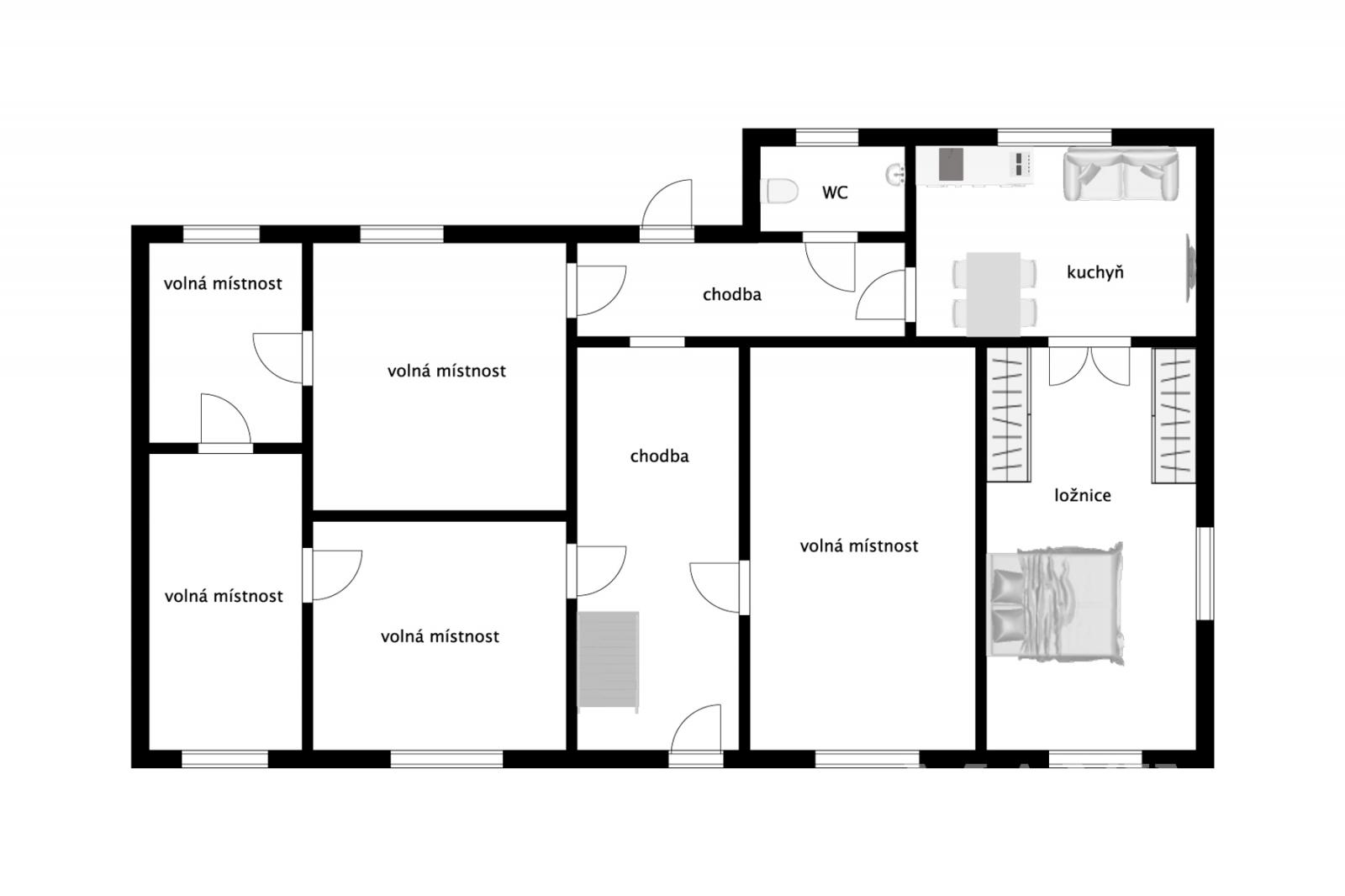
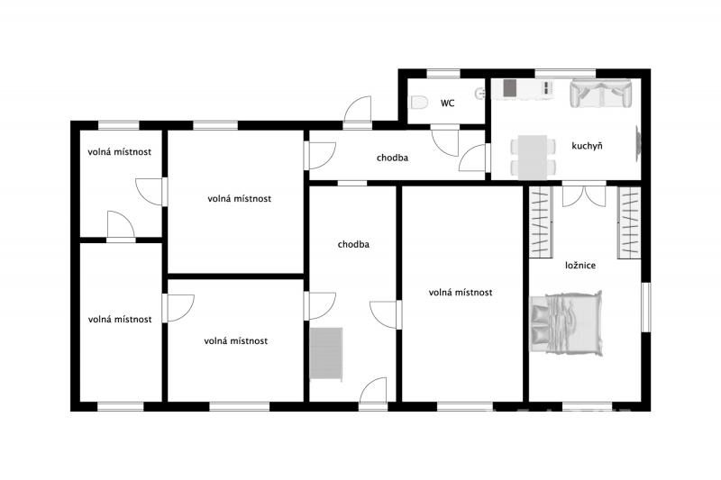
Obytná část domu se skládá z šesti pokojů, kuchyně, WC s mycím koutem. Prostorná půda nabízí možnost rozšíření obytné části půdní vestavbou.
K domu náleží zděná dílna na zahradě (10 m2) a dřevěná kůlna (25 m2).
Dům je napojen na elektřinu, kanalizaci, plynová přípojka je v domě a vlastní studnu (vodovodní přípojka před domem). Vytápění je kamny na tuhá paliva.
Obec má veškerou občanskou vybavenost, je dostupné autobusem i vlakem. Dojezdová vzdálenost autem do okolních měst - Jičín, Nová Paka, Hořice a Dvůr Králové nad Labem je 20 min.
Fotky nepřenesou atmosféru a kouzlo nemovitosti. Nechte se okouzlit osobně, zavolejte a domluvíme si prohlídku.
PENB:G* (údaj neni k dispozici, bude aktualizován)